| 
                ||
                     
                        全部產品分類
  | 
                ||
                            
                        
                            
                
                    
                
                    
                
                        
                        
                        
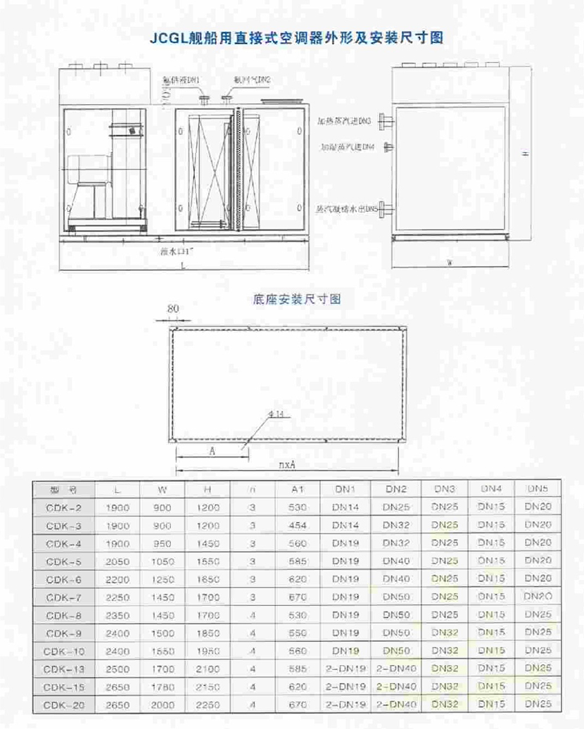
            | 艦船用直接式空調器 | |||
| 類型: | 直接式 | 制冷量: | 175 kw | 
| 制熱量: | 186 kw | 名義風量: | 15000 m3/h | 
| 機外余壓: | 1800 Pa | 制冷介質: | R22(R134a、R404A、R407C) | 
| 制熱介質: | 0.3-0.4MPa飽和蒸汽、熱水 | 主電路電源: | AV380V 3Φ50Hz | 
| 控制電路電源: | AV220V 1Φ50Hz | 安全保護裝置: | 氟高壓、氟低壓、(油壓)、斷水、缺相、過載、安全閥(或易熔塞) | 
| 風機型式: | 船用離心風機 | 風機電機功率: | 15 kw | 
| 蒸汽加熱器型式: | 銅管套銅翅片 | 蒸汽耗量: | 318 kg/h | 
| 外形尺寸: | 2650×1780×2150 mm | 重量: | ~2000 kg | 
        


        | -供應商聯系方式- | |||||
| 
                     | 
                公司名稱: | 靖江市國利空調制造有限公司 | 
                     | 
                聯系人姓名: | 錢麗美 | 
| 公司地址: | 靖江市城北園區長新路8號 | 聯系人電話: | 0523-84800546/13775714648 | ||
| 聯系人郵箱: | yangnie168@163.com | ||||