| 
                ||
                     
                        全部產品分類
  | 
                ||
                        
                        
                        
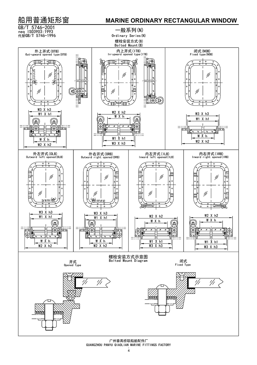
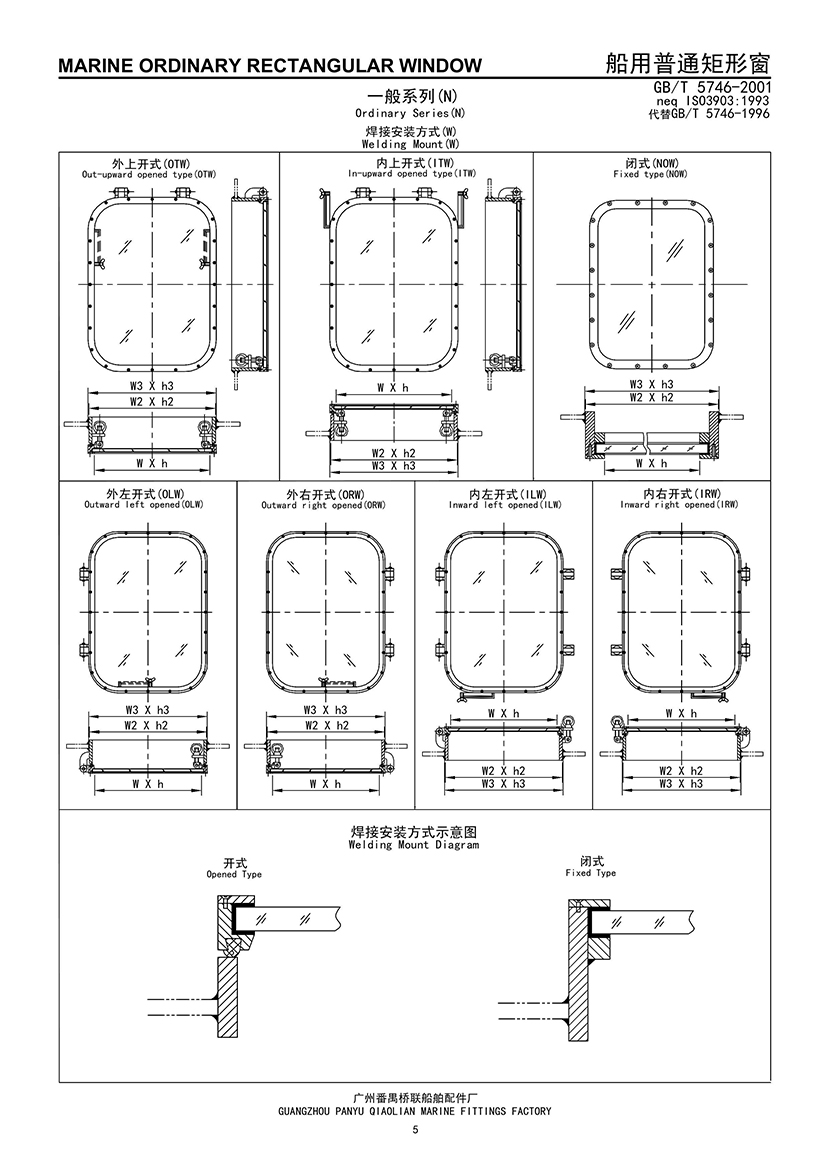
            | 船用焊接安裝式普通矩形窗 | |||
| 安裝方式: | 焊接式 | 圍壁開孔尺寸: | 612×852 126mm | 
        


        | -供應商聯系方式- | |||||
| 
                     | 
                公司名稱: | 廣州番禺橋聯船舶配件廠 | 
                     | 
                聯系人姓名: | 陳偉安 | 
| 公司地址: | 廣東省廣州市番禺區石碁鎮大龍工業區黃山路2號之8 | 聯系人電話: | 020-84634555/84634492 | ||
| 聯系人郵箱: | qiaoliancn@126.com | ||||